Tính thẩm mĩ mặt tiền sẽ là điểm nổi bật nhất trong thiết kế nhà phố 1 tầng sẽ phụ thuộc vào kiến trúc, sự phối hợp giữa các vật liệu hoàn thiện. Chiều ngang của ngôi nhà là nhân tố rất quan trọng, thể hiện trọn vẹn kiến trúc mặt tiền của ngôi nhà.Với mẫu thiết kế nhà phố 1 tầng, ngôi nhà có chiều ngang khoảng 5m thiết kế với hình ảnh đơn giản nhưng không kém phần sang trọng, sự hấp dẫn trong ánh nhìn bởi sự kết hợp tinh tế vận dụng tối đa màu sắc của đá tự nhiên để hoàn thiện mặt tiền ngôi nhà.

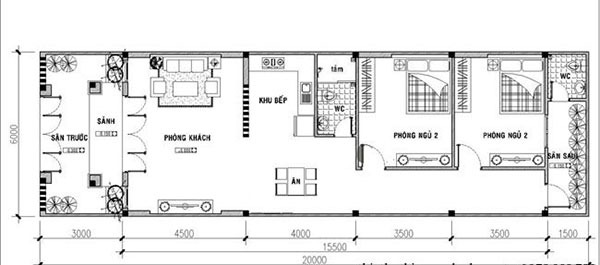
Với sự ưa chuộng của các mẫu nhà ống, hiện nay mẫu nhà ống 1 tầng đẹp có rất nhiều, các thiết kế rất bắt mắt và độc đáo. Nhà ống 1 tầng thường có thiết kế các loại phòng chức năng cơ bản, và được thiết kế tiện lợi, kết hợp với nhau. Các phòng có chức năng cơ bản như: phòng khách phòng ăn, phòng ngủ, phòng tắm và nhà vệ sinh sẽ thường được kết hợp để tiết kiệm diện tích. Đối với nhà ống 1 tầng thường sẽ dành cho gia đình có 4 người trở xuống để đảm bảo được sự thoải mái và các không gian riêng tư.

Đối với nhiều người nhà ống 1 tầng có vẻ chật chội và thiếu không gian, nhưng thực tế hiện nay, nhà ống có rất nhiều thiết kế và chủ yếu là thiết kế kiểu mở. Với thiết kế kiểu mở cho ngôi nhà ống 1 tầng giúp không gian trở nên thoáng mát, và cảm giác ngôi nhà trở nên rộng rãi hơn. Nhà ống hiện nay có rất nhiều ưu điểm mà ít ai biết đến như:
- Nhà ống có diện tích nhỏ thiết kế và thi công nhanh chóng
- Chi phí xây dựng thấp, vừa vặn với diện tích đất nhà ở của nhiều người Việt. Chỉ với chi phí thấp nhưng đang mang lại cho chủ nhà một thiết kế hiện đại, không kém phần sang trọng.
- Nhà ống không quá cầu kỳ nên thời gian trang trí thiết kế nội thất nhanh chóng.
Hiện nay trên thị trường có rất nhiều mẫu nhà ống khác nhau không mang đậm nhiều nét văn hóa:
- Nhà ống được thiết kế theo kiểu truyền thống: đây là loại nhà ống bạn sẽ dễ dàng bắt gặp khi ở nông thôn, kiểu nhà này thường được xây dựng nhanh chóng và làm nơi ở tạm cho nhiều gia đình.
- Nhà ống thiết kế theo phong cách hiện đại: kiểu nhà này thường được thấy trong các khu đô thị, với thiết kế kết hợp với thiên nhiên tạo nên không gian xanh mát, thu hút, nhưng không kém phần tinh tế.
- Nhà ống được thiết kế theo phong các cổ xưa : Đây là kiểu nhà được tái hiện theo phong cách những năm 70 – 80, phong cách này hiện nay có rất nhiều người ưa chuộng.
- Nhà ống được xây dựng theo phong cách Châu Âu, hay phong cách kiểu Pháp. Kiểu nhà này thường ít bắt gặp nhưng khi thiết kế, xây dựng nó mang lại vẻ sang trọng và tinh tế cho những người sống theo phong cách của các nước Châu Âu.

