Nhìn vào thiết kế nhà hiện đại 3 tầng không có quá nhiều chi tiết trang trí cầu kỳ tỉ mỉ, thay vào đó là sự biến tấu độc đáo của hình khối của ngôi nhà. Với 2 khối nhà được thiết kế nhô gia liên kết bởi khối nhỏ thụt vào với tỉ lệ hình khối vàng do sở hữu diện tích 17m mặt tiền rộng rãi.

Kiến trúc nhà hiện đại đi theo xu hướng tối giản đảm bảo yếu tố thẩm mỹ, công năng, thiên nhiên chan hòa. Ở mẫu nhà này với ưu điểm 2 mặt tiền vì thế cả 3 tầng nhà đều đáp ứng với không gian mở ở 4 hướng, ánh sáng mặt trời, những view nhìn đẹp được tận dụng ở mỗi ô cửa của từng căn phòng.
Ngoài ra trong thiết kế nhà hiện đại 3 tầng chúng ta thấy khối hình hộp chữ nhật vừa giúp tạo hành lang đi lại rộng rãi, vừa giảm nhiệt cho các phòng đồng thời làm điểm nhấn trang trí thú vị cho hình ảnh kiến trúc của toàn bộ ngôi nhà.
Mẫu nhà hiện đại 3 tầng 2 mặt tiền diện tích 160m2 là bản giao hưởng của những vật liệu gạch ốp và sơn tường với 2 màu sắc hòa hợp là màu trắng, xám cùng màu gỗ ấm áp. Ở đó những bức tường được ốp gạch ngoại thất với các màu sắc trang nhã ấn tượng, phối hợp tuyệt vời mang đến hình ảnh bắt mắt nhất cho ngôi nhà.

Thiết kế với vật liệu thép được ứng dụng linh hoạt trong trang trí mẫu nhà hiện đại. Có thể kể đến hình ảnh lan can ban công bằng thép với những nan chắn đơn giản không quá cầu kỳ mà hòa nhập với tổng thể ngôi nhà. Với thiết kế thanh thép làm mái hiên nơi tầng 3 là điểm nhấn độc đáo cho thiết kế hiện đại của mẫu nhà. Và chắc chắn rồi phong cách thiết kế hiện đại được yêu thích và luôn trường tồn theo thời gian mang đến đẳng cấp cho chủ nhân sở hữu.
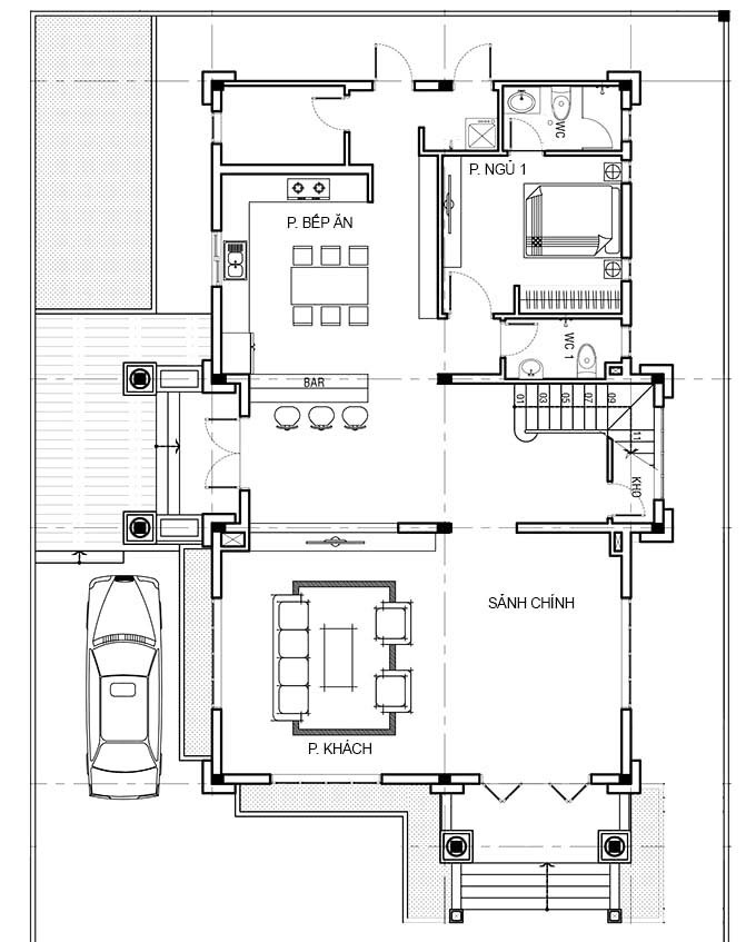
Mẫu nhà hiện đại 3 tầng 2 mặt tiền diện tích 160m2 được thiết kế tỉ mỉ, cẩn thận với bộ hồ sơ thiết kế chi tiết và đầy đủ. Từ bản vẽ kiến trúc với các chi tiết. Mặt bằng, mặt đứng, mặt cắt, chi tiết cửa, chi tiết lan can, cầu thang, tay vịn,…. Đến bản vẽ kết cấu, bản vẽ thiết kế điện và nước. Kiến trúc chúng tôi mong muốn mang đến cho chủ đầu tư chi phí tiết kiệm nhất. Đầu tư hiệu quả nhất đạt đến hiệu quả về thẩm mỹ, kinh tế. Cũng như yêu cầu công năng sử dụng của toàn bộ ngôi nhà.


