Nhà ống 2 tầng mái lệch thực chất là kiểu kiến trúc được cách điệu kiểu mái dốc truyền thống với các mặt cắt không cân xứng. Xét về mặt tổng thể, kiểu hình kiến trúc này thường có xu hướng đổ bê tông mái bằng nhưng có độ chênh lệch và dốc 2 mái khác nhau, đem lại hiệu ứng lệch tầng đẹp mắt, tạo dấu ấn mạnh mẽ. Phần mái lệch không đơn thuần đóng vai trò che chắn, thẩm mỹ hay phong thủy mà còn giúp hoàn thiện không gian thêm trọn vẹn, đầy đặn, mang tính thẩm mỹ và ý nghĩa lớn.
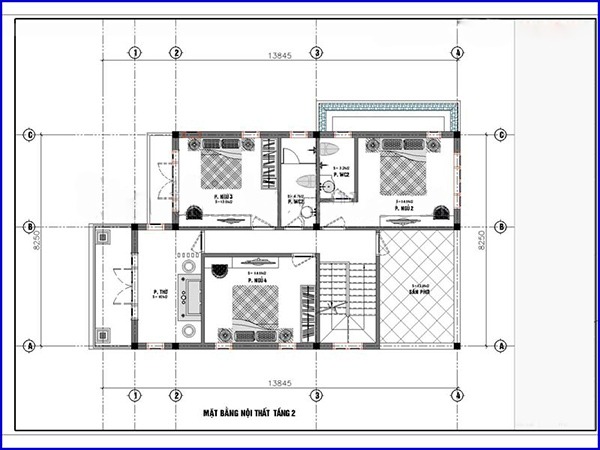
Bản vẽ nhà 2 tầng mái lệch đẹp bố trí nội thất khu vực tầng 1, tầng 2 khoa học. Khu vực phòng khách, phòng ngủ, phòng ăn được tách biệt để tạo sự riêng tư khi sử dụng. Bức tường và vách ngăn sử dụng để ngăn cách phòng mà còn tăng thẩm mỹ cho nhà mái lệch đẹp.
