Nhà chữ U là kiểu nhà có cửa chính nằm ngay giữa mặt tiền ngôi nhà và nằm thụt vào bên trong so với hai bên. Hoặc nói một cách dễ hiểu hơn, bạn có thể tưởng tượng ngôi nhà giống như chữ U. Bên phải và bên trái ngôi nhà sẽ như hai cạnh của chữ, tạo một khoảng sân chung ở giữa. Kiểu thiết kế này cực kỳ thích hợp với những ngôi nhà ở nông thôn và có đất tương đối rộng.

Kết nối không gian nhanh chóng, gần gũi: so với mẫu nhà ống, nhà cấp 4 truyền thống thì mẫu nhà chữ U có khả năng kết nối giữa các phòng, các khoảng không gian thuận tiện hơn. Thiết kế này rất hữu ích trong quá trình sinh hoạt, di chuyển từ phòng này sang phòng khác; chỉ cần đi qua khoảng sân trước là có thể bao quát hết được bố cục bày bố trong nhà.
Hình khối hài hòa, cân xứng: ba mặt của ngôi nhà tiếp giáp nhau và cùng nhìn chung khoảng sân trước, phần tiếp xúc với sân vườn rộng. Kiểu dáng nhà chữ U cũng giúp tạo ra sự thoáng đãng, lưu thông không khí thông qua các không gian trong và ngoài, đón nhận sự mát mẻ và năng lượng tích cực.

Công năng: sự cân đối trong bố cục cũng là ưu điểm khi bố trí các phòng chức năng. Gia chủ có thể phân chia thành các khu riêng biệt mà vẫn đảm bảo tính kết nối, chuyển tiếp tự nhiên, khoa học.
Chi phí xây dựng hợp lý: rất nhiều gia đình ở nông thôn chọn mẫu nhà vườn chữ U, không chỉ vì khuôn viên sống gần gũi, cởi mở mà còn bởi chi phí xây dựng không quá cao. Đặc biệt, nếu chọn mái bằng, mái tôn thì giá cả còn rẻ hơn nhiều so với mái thái mà vẫn không làm ảnh hưởng lớn đến thẩm mỹ. Kiến trúc pha lẫn giữa truyền thống và hiện đại nếu tinh tế, biết cách phối hợp sẽ mang lại hiệu quả không thua kém gì những căn biệt thự mini sang trọng.
Công năng: sự cân đối trong bố cục cũng là ưu điểm khi bố trí các phòng chức năng. Gia chủ có thể phân chia thành các khu riêng biệt mà vẫn đảm bảo tính kết nối, chuyển tiếp tự nhiên, khoa học.
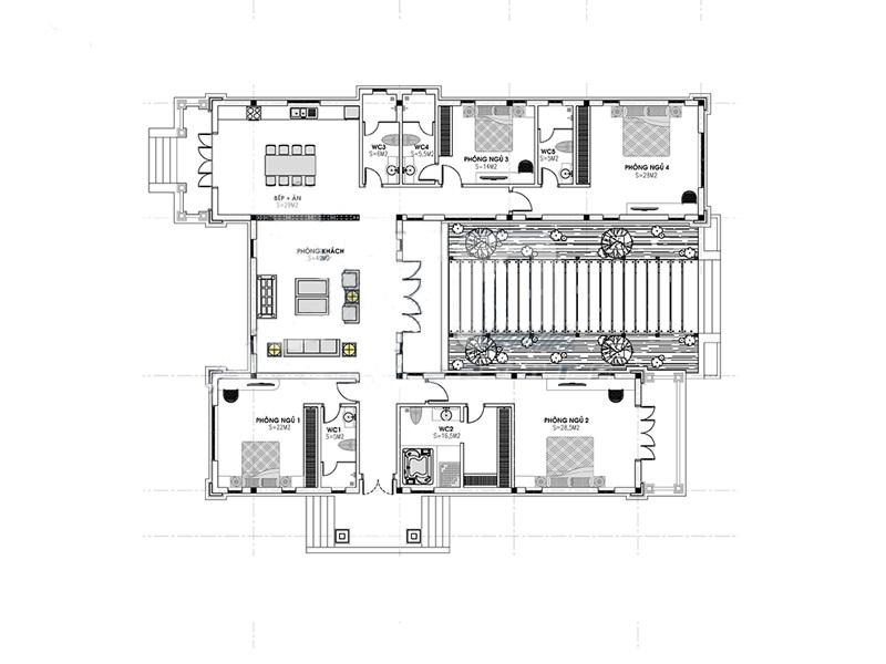
Bản vẽ chi tiết nhà vườn cấp 4 chữ U với 4 phòng ngủ.
