Nhà cấp 4 mái thái chữ U là mẫu nhà có phần cửa chính được đặt giữa mặt tiền của căn nhà, nằm thụt vào phía trong làm. Vì thế, 2 phần bên trái và bên phải của thiết kế nhà nhô ra theo hai cạnh giống hình chữ U.
Nhà chữ U thường được xây dựng theo dạng cấp 4 hoặc nhà 2 tầng với nhiều phong cách thiết kế khác nhau. Tùy thuộc vào diện tích mảnh đất mà ngôi nhà sẽ có hình dáng khác nhau.

Tính thẩm mỹ cao
Sở dĩ mẫu nhà cấp 4 mái thái chữ U này được xây dựng phổ biến bởi mang nét đẹp mới lạ, độc đáo, khác biệt so với những mẫu nhà khối thông thường. Kiến trúc nhà cấp 4 chữ U tạo ra sự thoáng đãng, lưu thông không khí thông qua các không gian trong và ngoài, khiến ngôi nhà mát mẻ hơn.
Hơn nữa thiết kế mái thái được giới chuyên gia về phong thủy đánh giá khá tốt, độ dốc cao, hình chóp nên giúp ngôi nhà tránh được những hiện tượng tích tụ hung khí.
Từ đó sẽ giúp mang đến sự may mắn cũng như tốt lành dành cho gia chủ. Bên cạnh đó, thiết kế mái dốc cao vừa phải, vừa khiến ngôi nhà trông thanh thoát hơn vừa bảo vệ ngôi nhà trước những thay đổi của thời tiết.
Dễ dàng phân chia các phòng chức năng
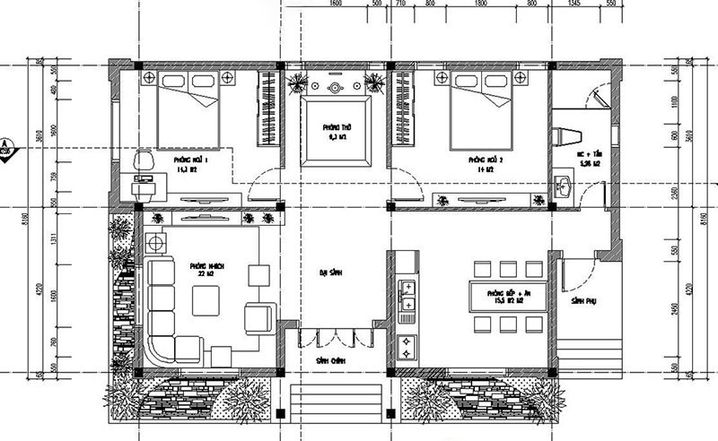
Nhà hình chữ U phù hợp xây dựng trên những ô đất có diện tích lớn, có hình vuông vắn bằng phẳng. Với thiết kế này, gia chủ sẽ dễ dàng phân chia các khu vực, các phòng chức năng trong nhà.
Thông thường, trên mặt bằng ngôi nhà, hai cạnh hình chữ U được bố trí các phòng ngủ, hoặc 1 bên làm phòng khách, 1 bên làm phòng bếp. Như vậy từ căn phòng này bạn có thể nhìn sang phòng khác một cách dễ dàng.

Di chuyển thuận lợi giữa các không gian
Khác với nhà ống, nhà vuông hay nhà chữ L, mẫu nhà cấp 4 mái thái chữ U có thiết kế lối đi thuận tiện, giúp các thành viên dễ dàng di chuyển từ phòng này sang phòng khác. Cả 3 mặt của ngôi nhà tiếp giáp với nhau, cùng chung 1 khoảng sân ở giữa nên việc di chuyển là hoàn toàn dễ dàng và thuận tiện.
Không gian thoáng đãng
Mẫu nhà cấp 4 mái thái chữ U với các khoảng mặt tiền thông thoáng, giúp không khí luôn được lưu thông. Nhờ đó bên trong nhà lúc nào cũng sáng sủa và mát mẻ.
Ở bất cứ thiết kế nào thì những bước đầu tiên để hoàn thành một căn nhà là cần có bản vẽ 2D và 3D. Khách hàng và đội ngũ thi công chốt với nhau sau các lần chỉnh sửa khác nhau. Và cuối cùng là phương án phù hợp nhất để hoàn thiện ngôi nhà của bạn. Chính vì vậy bạn nên chọn những đơn vị có kinh nghiệm lâu năm.
